Public procurement
21406715
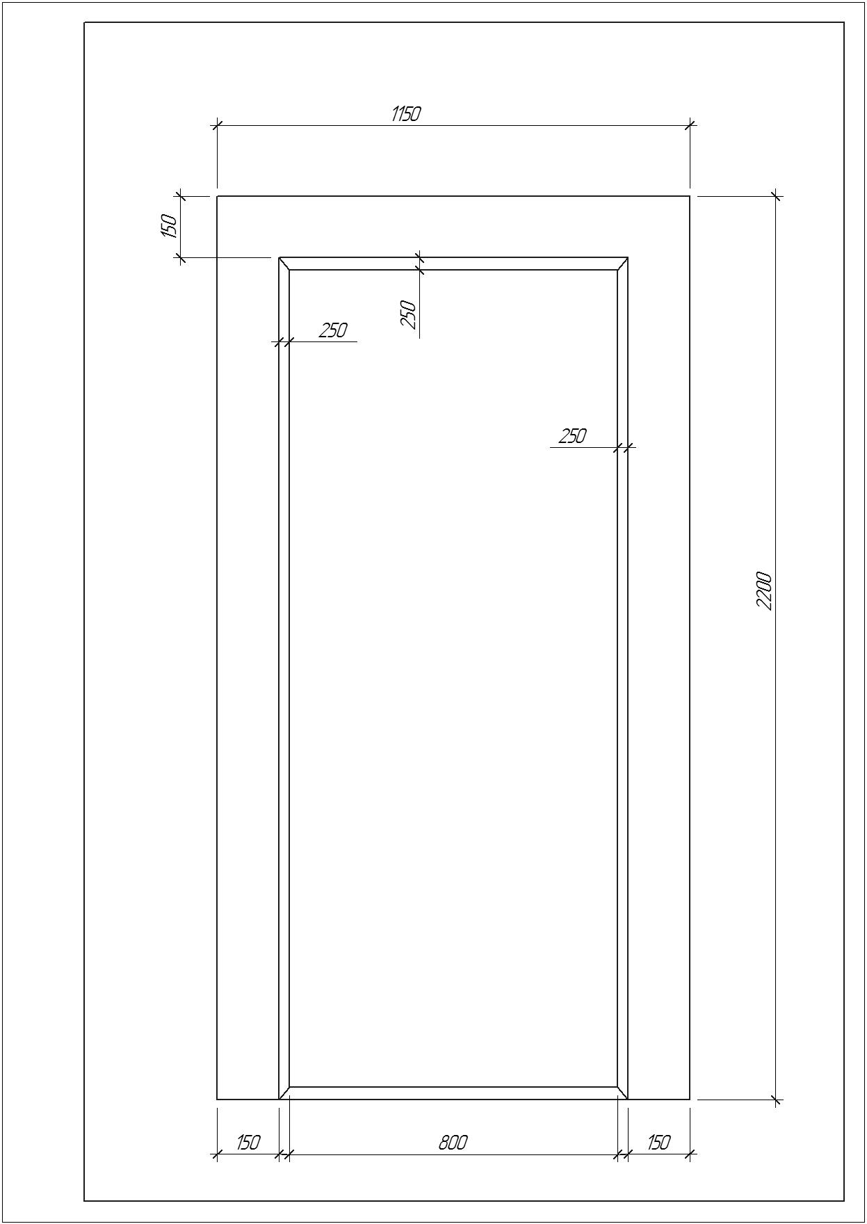
Lot. 2 Lucrări de reparație a camerei de mecanisme pentru ascensoare
Status
Purchase has not taken place
Estimated value without VAT
49 042,80 MDL
Period of clarifications:
15 Apr 2025, 15:13 - 27 Apr 2025, 11:05
Submission of proposals:
27 Apr 2025, 11:05 - 8 May 2025, 5:05
Auction start date:
will not be used
Supplier technical support:
(+373) 79999801
This procedure is carried out without auction. Your offer is final and must contain the entire list of required documents.
Lucrări de reparație a camerei de mecanisme pentru ascensoare
Information about customer
Title
Fiscal code/IDNO
Address
MD-2012, MOLDOVA, mun.Chişinău, mun.Chişinău, str. 31 August 1989, nr.70
Web site
---
The contact person
Purchase data
Date created
15 Apr 2025, 15:05
Date modified
25 Apr 2025, 11:05
Estimated value (without VAT)
49 042,80 MDL
Achizitii.md ID
21406715
MTender ID
Type of procedure
Open tender
Award criteria
The lowest price
Delivery address
MD-2012, MOLDOVA, mun.Chişinău, mun.Chişinău, str. 31 August 1989, nr.70
Contract period
12 May 2025 15:12 - 31 Dec 2025 15:12
List of positions
1)
Title
Lucrări de reparație a camerei de mecanisme pentru ascensoare
CPV: 42400000-0 - Lifting and handling equipment and parts
Quantity: 1.0
Unit of measurement: Bucata
Subscription settings saved.
Remember, you can always go back to the Subscriptions section and make changes to the frequency of receiving letters, delete or add categories and customers.
Вы уже подписаны на данный CPV код
Insufficient funds
You do not have enough funds in your account to set up a subscription. Top up your account, to continue.
Subscription Setup
Subscribe to daily email notifications according to selected CPV and/or IDNO categories for the period:
The subscription cost is 10 MDL with VAT per month.
View Regulations.
Documents of the procurement procedure
anunt de participare ascensoare.semnat.pdf
anunt de participare ascensoare.semnat.pdf
Bidding Documents
-
15.04.25 15:13
caiet de sarcini_lucrări de reparație a camerei de mecanisme a ascensoarelor în cadrul imsp policlinica de stat.docx
Bidding Documents
-
15.04.25 15:13
caiet de sarcini_ascensoare_2025.semnat.pdf
caiet de sarcini_ascensoare_2025.semnat.pdf
Bidding Documents
-
15.04.25 15:13
declaratie privind confirmarea identității beneficiarilor efectivi.doc
Bidding Documents
-
15.04.25 15:13
anunt de participare ascensoare (modificat).semnat.pdf
anunt de participare ascensoare (modificat).semnat.pdf
Bidding Documents
-
18.04.25 16:14
caiet de sarcini_ascensoare_2025 (modificat).semnat.pdf
caiet de sarcini_ascensoare_2025 (modificat).semnat.pdf
Bidding Documents
-
18.04.25 16:14
Lot documents
The history of the auction
View auction
Unfortunately, questions can be asked only during the "Active" period.
Clarifications
Document successfully signed
OK